EXCLUSIVITE LMA Chelloise, Bonne Opportunité!
Délégation et Intercabinet possibles au cas par cas pour les agences!
Agents Immos, Soyez réglos! Pas besoin de démarcher les vendeurs, je partage!
Situé dans un quartier hyper-calme, très tranquille et pavillonnaire à 6 minutes en bus des commerces, des écoles de la maternelle et primaire et des 2 gares: la Gare actuelle et future gare Grand-Paris Express de Chelles-Gournay (ligne P et RER E) ainsi que celle du Chenay-Gagny!
- Ligne de Bus 701 au bout de la rue
- Ligne P direct Paris Gare de l’Est 16 minutes
- Ligne RER E Omnibus jusqu’à Magenta, Haussmann-Saint-Lazare, Porte Maillot et La Défense
- Futures gares Ligne 16 à Chelles et Gare routière des Bus !
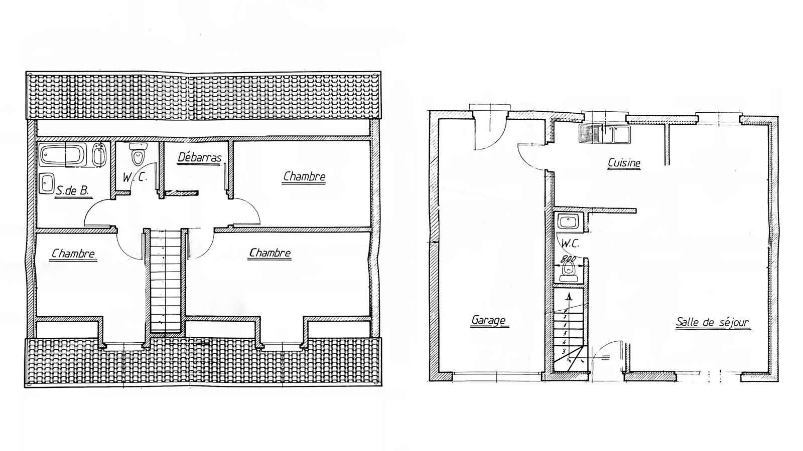
Venez découvrir cette belle Maison, pratique, individuelle et lumineuse, entretenue des Années 1990 de 81m² Habitables pour 110m² Utiles en bon état, avec composée de:
En rez de chaussée: entrée donnant sur Séjour-salle à manger de 32m2 avec accès terrasse et Cheminée, Cuisine ouverte équipée, WC séparés et grand garage avec accès au jardin arrière,
Au 1er Etage: 3 chambres dont 1 grande, 1 salle de bains, WC séparés et pièce pouvant servir de stockage.
Devant la maison, parking pour 1 véhicule!
Exposition Est-Ouest. Double vitrage et Jardin au calme sans vis à vis.
Rafraichissement et remise au gout du jour à prévoir, possibilités de transformation.
Beaucoup de calme, idéal famille, un cocon. Maison Coup de cœur! Rare sur le secteur à ce prix.
DPE : D (228) GES : B (9)
Date de réalisation du diagnostic : 10/03/2026
Estimation des Coûts Annuels d’énergie du Logement pour un usage standard entre 1720 € et 2380€ par an. Moyenne à 170€ par mois.
Prix moyens des énergies indexés sur l’année 2021, 2022, 2023 (abonnements compris)
Contactez nous pour toutes questions!
Réf: M 0184
Contactez nous pour toutes questions!























